Регулятор расхода с обратным клапаном компенсированный по давлению тип VRC
Регулятор расхода с обратным клапаном используется для регулировки расхода рабочей жидкости в одном направлении; в обратном направлении поток свободен. Внутренняя система компенсации позволяет поддерживать постоянный расход даже при изменении давления и вязкости жидкости. Высокая чувствительность регулировки.
| Вязкость масла | 10-500 мм2/с |
| Требование к чистоте масла | SAE класс 4 и выше |
| Температура рабочей жидкости | от - 20 °С до + 80 °С |
| Температура окружающей среды | от - 20 °С до + 50 °С |
| Максимальное давление | 25 МПа (250 бар) |
| Масса | 0,48-0,72 кг |

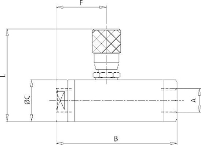
| Технические характеристики | ||||||||
| Модель | A | Макс. расход л/мин | Макс. давл., бар | B | C | F | L | Масса, кг. |
| VRC140 | BSPP 1/4 | 10 | 250 | 88 | 27 | 51 | 52 | 0,49 |
| VRC380 | BSPP 3/8 | 18 | 250 | 88 | 27 | 51 | 52 | 0,48 |
| VRC120 | BSPP 1/2 | 33 | 250 | 108 | 36 | 61 | 57 | 0,72 |
Скачать технические характеристики и размеры
производитель
OLEOWEB
Если вы хотите купить регулятор расхода с обратным клапаном компенсированный по давлению тип VRC , вы можете:
Позвонить:

