Сепаратор магнитный. Тип MCJ
 
   Магнитный сепаратор применяется для очистки СОЖ от ферромагнитных частиц.
Применяется в плоскошлифовальных, бесцентрово-шлифовальных, внутришлифовальных/круглошлифовальных , хонинговальных , резьбошлифовальных, шлифовально-полировальных станках.
Могут применяться совместно с фильтром-транспортером типа PFA 
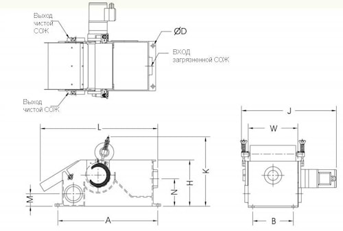
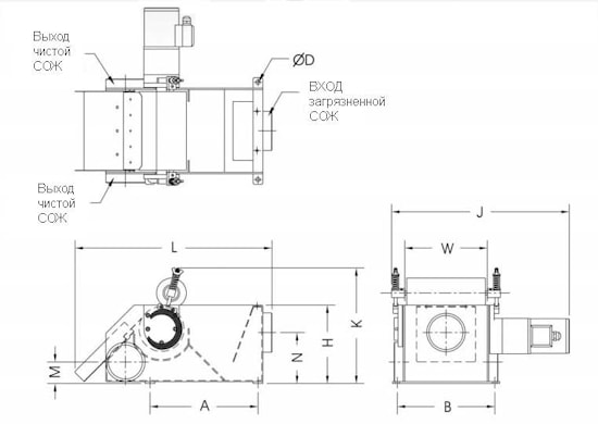
Конструкция магнитного сепаратора MCJ нового типа.
В отличии от аналогичных сепараторов у MCJ магнит неподвижен, находится внутри барабана
в наиболее эффективной зоне.
В зоне разгрузки магнитное поле отсутствует
и скребок не намагничивается, что значительно облегчает разгрузку и экономит энергию.
Прижимной валик отжимает остатки СОЖ из загрязнений что значительно уменьшает расход жидкости.
По мере износа скребка его можно регулировать, подвигая вперед.
 
  
 
Размеры MCJ 40-160, 360
 
 
MCJ 240
 
 
| Модель | Подача, л/мин | L | W | H | M | N | A | B | D | J | K | Вход | Выход | Двигатель | 
| MCJ-40 | 40 | 464 | 150 | 165 | 50 | 110 | 398 | 120 | 11 | 353 | 280 | G2" | G2" | 220/380В 25Вт/0,14A | 
| MCJ-60 | 60 | 464 | 206 | 185 | 50 | 110 | 398 | 176 | 11 | 409 | 280 | G2" | G2" | |
| MCJ-80 | 80 | 464 | 242 | 185 | 50 | 110 | 398 | 212 | 11 | 445 | 280 | G2" | G2 1/2" | |
| MCJ-120 | 120 | 485 | 270 | 220 | 50 | 140 | 398 | 230 | 11 | 473 | 315 | G2" | G2 1/2" | |
| MCJ-160 | 160 | 485 | 354 | 220 | 60 | 140 | 398 | 314 | 11 | 557 | 315 | G3" | G3" | |
| MCJ-240 | 240 | 503 | 450 | 200 | 60 | 125 | 275 | 488 | 11 | 690 | 295 | G3" | G3" | 220/380В 40Вт/0,22A | 
| MCJ-360 | 360 | 558 | 586 | 205 | 67 | 135 | 456 | 546 | 11 | 852 | 315 | G4" | G4" | 
ВНИМАНИЕ! При применении СОЖ на масляной основе коэффициент производительности следует принимать 0,5 - 0,25 в зависимости от вязкости.
При очень высокой вязкости следует заказывать исполнение с редуктором 1/900.
производитель
GPA

 
 
 
 
 
 
 
 
 
 
 
 
