Сверхмощные гидродомкраты одностороннего действия серия SSJ 50-800 тонн, ход 50-300 мм
50-800 тонн, ход 50-300 мм
Сверхмощные гидродомкраты одностороннего действия применяются для подъема сверхтяжелых грузов, возврат в исходное положение осуществляется под действием нагрузки.Особенности гидродомкратов серии SSJ
• Грузоподъемность 50-800 тонн
• Ход штока 50-300 мм
• Давление масла 700 бар
• Встроенный предохранительный клапан не допускает перегрузки.
• Твердые хромированные стальные поршни высокого качества.
• Эксклюзивное направляющее кольцо принимает на себя радиальную нагрузку исключая деформацию частей цилиндра.
• Съемные седла с закаленными пазами
• Специальная окраска для увеличения коррозионной стойкости.
• Пыльник штока уменьшает загрязнение, продлевая срок службы цилиндра.
• Все модели комплектуются быстроразъемными муфтами с защитной крышкой.
• Крепежные отверстия позволяют легко закрепить домкрат.
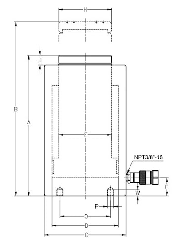
Таблица подбора:
| Грузоподъемность | Ход | Модель | Площадь поршня | Объем масла | Высота | Высота шток выдвинут | Диаметр | Диаметр поршня | Диаметр штока | Масса | |
| A | B | C | D | E | F | ||||||
| ton | (mm) | (cm2) | (cm3) | (mm) | (mm) | (mm) | (mm) | (mm) | (mm) | (kg) | |
| 50 | 50 | SSJ50-50 | 78.5 | 392 | 188 | 238 | 140 | 100 | 70 | 41 | 21.5 |
| 100 | SSJ50-100 | 78.5 | 784 | 238 | 338 | 140 | 100 | 70 | 41 | 26 | |
| 150 | SSJ50-150 | 78.5 | 1176 | 288 | 438 | 140 | 100 | 70 | 41 | 31 | |
| 200 | SSJ50-200 | 78.5 | 1568 | 338 | 538 | 140 | 100 | 70 | 41 | 35 | |
| 300 | SSJ50-300 | 78.5 | 2352 | 438 | 738 | 140 | 100 | 70 | 41 | 44 | |
| 100 | 50 | SSJ100-50 | 153.9 | 770 | 216 | 266 | 180 | 140 | 100 | 54 | 42 |
| 100 | SSJ100-100 | 153.9 | 1540 | 266 | 366 | 180 | 140 | 100 | 54 | 49 | |
| 150 | SSJ100-150 | 153.9 | 2310 | 316 | 466 | 180 | 140 | 100 | 54 | 56 | |
| 200 | SSJ100-200 | 153.9 | 3080 | 366 | 566 | 180 | 140 | 100 | 54 | 63 | |
| 300 | SSJ100-300 | 153.9 | 4620 | 466 | 766 | 180 | 140 | 100 | 54 | 70 | |
| 150 | 50 | SSJ150-50 | 201 | 1005 | 224 | 274 | 210 | 160 | 112 | 58 | 44 |
| 100 | SSJ1S0-100 | 201 | 2010 | 274 | 374 | 210 | 160 | 112 | 58 | 57 | |
| 150 | SSJ150-150 | 201 | 3015 | 324 | 474 | 210 | 160 | 112 | 58 | 70 | |
| 200 | SSJ150-200 | 201 | 4020 | 374 | 574 | 210 | 160 | 112 | 58 | 83 | |
| 300 | SSJ150-300 | 201 | 6030 | 474 | 774 | 210 | 160 | 112 | 58 | 109 | |
| 200 | 50 | SSJ200-50 | 314 | 1570 | 246 | 296 | 250 | 200 | 150 | 64 | 84 |
| 150 | SSJ200-150 | 314 | 4712 | 346 | 496 | 250 | 200 | 150 | 64 | 118 | |
| 300 | SSJ200-300 | 314 | 9423 | 496 | 796 | 250 | 200 | 150 | 64 | 152 | |
| 320 | 50 | SSJ300-50 | 490.6 | 2453 | 277 | 327 | 315 | 250 | 180 | 74 | 155 |
| 150 | SSJ300-150 | 490.6 | 7359 | 377 | 527 | 315 | 250 | 180 | 74 | 195 | |
| 300 | SSJ300-300 | 490.6 | 14718 | 527 | 827 | 315 | 250 | 180 | 74 | 255 | |
| 400 | 50 | SSJ400-50 | 572.3 | 2861 | 305 | 355 | 355 | 270 | 220 | 83 | 240 |
| 150 | SSJ400-150 | 572.3 | 8583 | 405 | 555 | 355 | 270 | 220 | 83 | 310 | |
| 300 | SSJ400-300 | 572.3 | 17169 | 555 | 855 | 355 | 270 | 220 | 83 | 415 | |
| 500 | 50 | SSJ500-50 | 803.8 | 4019 | 325 | 375 | 395 | 320 | 250 | 93 | 285 |
| 150 | SSJ500-150 | 803.8 | 12057 | 425 | 575 | 395 | 320 | 250 | 93 | 353 | |
| 300 | SSJ500-300 | 803.8 | 24114 | 575 | 875 | 395 | 320 | 250 | 93 | 455 | |
| 630 | 50 | SSJ600-50 | 1017.4 | 5087 | 386 | 436 | 450 | 360 | 280 | 115 | 487 |
| 150 | SSJ600-150 | 1017.4 | 15261 | 486 | 636 | 450 | 360 | 280 | 115 | 579 | |
| 300 | SSJ600-300 | 1017.4 | 30522 | 636 | 936 | 450 | 360 | 280 | 115 | 717 | |
| 800 | 50 | SSJ800-50 | 1256 | 6280 | 427 | 477 | 550 | 400 | 320 | 113 | 712 |
| 150 | SSJ800-150 | 1256 | 18840 | 527 | 677 | 550 | 400 | 320 | 113 | 860 | |
| 300 | SSJ800-300 | 1256 | 37698 | 677 | 977 | 550 | 400 | 320 | 113 | 1082 |

| Модель | Диаметр башмака | Выход башмака из штока | Глубина | ||
| H | J | O | P | W | |
| (mm) | (mm) | (mm) | (mm) | ||
| SSJ50-50 | 70 | 24 | 70 | 4-M16 | 13 |
| SSJ50-100 | 70 | 24 | 70 | 4-M16 | 13 |
| SSJ50-150 | 70 | 24 | 70 | 4-M16 | 13 |
| SSJ50-200 | 70 | 24 | 70 | 4-M16 | 13 |
| SSJ50-300 | 70 | 24 | 70 | 4-M16 | 13 |
| SSJ100-50 | 100 | 24 | 100 | 4-M20 | 16 |
| SSJ100-100 | 100 | 24 | 100 | 4-M20 | 16 |
| SSJ100-150 | 100 | 24 | 100 | 4-M20 | 16 |
| SSJ100-200 | 100 | 24 | 100 | 4-M20 | 16 |
| SSJ100-300 | 100 | 24 | 100 | 4-M20 | 16 |
| SSJ150-50 | 110 | 24 | 130 | 4-M20 | 16 |
| SSJ150-100 | 110 | 24 | 130 | 4-M20 | 16 |
| SSJ150-150 | 110 | 24 | 130 | 4-M20 | 16 |
| SSJ150-200 | 110 | 24 | 130 | 4 M20 | 16 |
| SSJ150-300 | 110 | 24 | 130 | 4-M20 | 16 |
| SSJ200-50 | 150 | 29 | 160 | 4-M24 | 24 |
| SSJ200-150 | 150 | 29 | 160 | 4-M24 | 24 |
| SSJ200-300 | 150 | 29 | 160 | 4-M24 | 24 |
| SSJ300-50 | 180 | 35 | 220 | 4-M24 | 24 |
| SSJ300-150 | 180 | 35 | 220 | 4-M24 | 24 |
| SSJ300-300 | 180 | 35 | 220 | 4-M24 | 24 |
| SSJ400-50 | 216 | 35 | 240 | 4-M24 | 24 |
| SSJ400-150 | 216 | 35 | 240 | 4-M24 | 24 |
| SSJ400-300 | 216 | 35 | 240 | 4-M24 | 24 |
| SSJ500-50 | 246 | 35 | 280 | 4-M24 | 24 |
| SSJ500-150 | 246 | 35 | 280 | 4-M24 | 24 |
| SSJ500-300 | 246 | 35 | 280 | 4-M24 | 24 |
| SSJ600-50 | 280 | 40 | 300 | 4-M24 | 24 |
| SSJ600-150 | 280 | 40 | 300 | 4 M24 | 24 |
| SSJ600-300 | 280 | 40 | 300 | 4-M24 | 24 |
| SSJ800-50 | 320 | 57 | 380 | 4-M24 | 24 |
| SSJ800-150 | 320 | 57 | 380 | 4-M24 | 24 |
| SSJ800-300 | 320 | 57 | 380 | 4-M24 | 24 |
Если вы хотите купить сверхмощные гидродомкраты одностороннего действия серия SSJ , вы можете:
Позвонить:

