Гидромотор планетарно-роторный- вращатель ГПРФ-M-2500...6300 - 12
Гидромотор планетарно-роторный (гидровращатель) ГПРФ-M-2500...6300 - 12См. также гидромотор РПГ
Таблица 1
| № | Наименование | Значения | ||||
| 1 | Рабочий объем, см 3 | 2500 | 3200 | 4000 | 5000 | 6300 |
| 2 | Перепад давления, МПа: | |||||
| • номинальный | 16 | |||||
| • максимальный | 21 | |||||
| 3 | Номинальный крутящий момент, Н.м, не менее | 4300 | 5600 | 7000 | 8700 | 11000 |
| 4 | Момент страгивания Н.м, не менее | 0,75 от номинального момента при длине рычага в | ||||
| 5 | Максимальный расход жидкости, л/min | 80 | ||||
| 6 | Частота вращения об/мин | |||||
| • номинальная | 32 | 25 | 20 | 16 | 9 | |
| • максимальная | 48 | 37 | 26 | 24 | 12,5 | |
| • минимальная | 3 | |||||
| 7 | Гидромеханический коэффициент полезного действия, не менее | 0,8 | ||||
| 8 | Коэффициент полезного действия, не менее | 0,75 | ||||
| 9 | Полезная номинальная МОЩНОСТЬ, КВТ | 14 | ||||
| 10 | Масса (без рабочей жидкости) кг не более | |||||
| с рычагом | 46 | 51.5 | 57 | |||
| без рычага | 32 | 37.5 | 46 | |||
| 11 | 90-процентный ресурс, час, не менее | 6000 | ||||
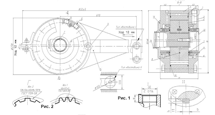
| 12 | Н, mm (рис. 4.1) | 110 | 118 | 128 | 140 | 155 |
| 13 | l, mm (рис. 4.1) | 30 | 38 | 48 | 60 | 75 |
ВНИМАНИЕ! При оформлении заказа указать исполнение (рис.2, табл.2), вариант (табл. 2) и тип хвостовика (рис. 1).

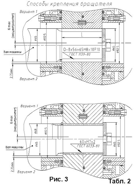
Таблица2
| Гидромотор | Исп. | b, mm | mm | t1, mm | d, mm | d1,mm | Тип шпиц, соед | Вариант | ||||
| I | II | |||||||||||
| D | D1 | D | D1 | |||||||||
| GPR-F-M-2500-12 GPR-F-M-3200-12 GPR-F-M-4000-12 GPR-F-M-5000-12 | GPR-F-M-6300-12 | 01 | 12 H9 | 14 | 7 | 65 | M24x1.5 | D8x56x65H8x10F10 ГОСТ 1139-58 | 260 | 260 | 250 | |
| 02 | 12 H9 | 14 | 7 | 65 | 3/4" | D8x56x65H8x10F10 ГОСТ 1139-58 | ||||||
| 03 | 16 N9 | 10 | 4,3 | 65 | M24x1.5 | D8x56x65H8x10F10 ГОСТ 1139-58 | ||||||
| 04 | 16 N9 | 10 | 4,3 | 65 | 3/4" | D8x56x65H8x10F10 ГОСТ 1139-58 | ||||||
| 05 | 12 H9 | 14 | 7 | 60 | M24x1.5 | 60xH7x2 ГОСТ 6033-80 | ||||||
| 06 | 12 H9 | 14 | 7 | 60 | 3/4" | 60хН7х2 ГОСТ 6033-80 | ||||||
| 07 | 16 N9 | 10 | 4,3 | 60 | M24x1.5 | 60хН7х2 ГОСТ 6033-80 | ||||||
| 08 | 16 N9 | 10 | 4,3 | 60 | 3/4" | 60хН7х2 ГОСТ 6033-80 | ||||||

производитель
HIDROINPEX
Если вы хотите купить гидромотор планетарно-роторный- вращатель ГПРФ-M-2500...6300 - 12 , вы можете:
Позвонить:

